1479 N 1320 W, Clinton, UT 84015 (MLS # 2118155)
|
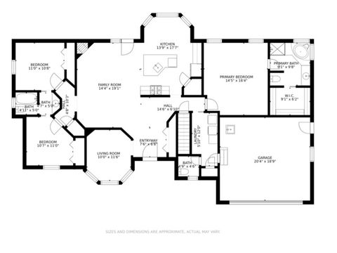
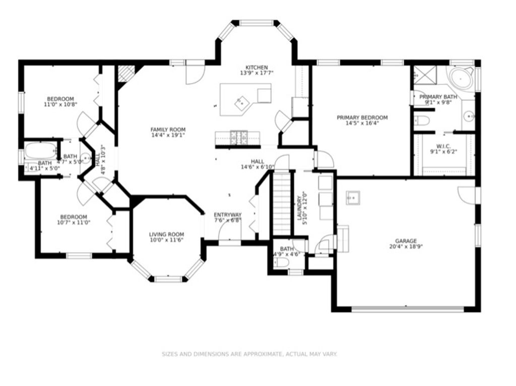
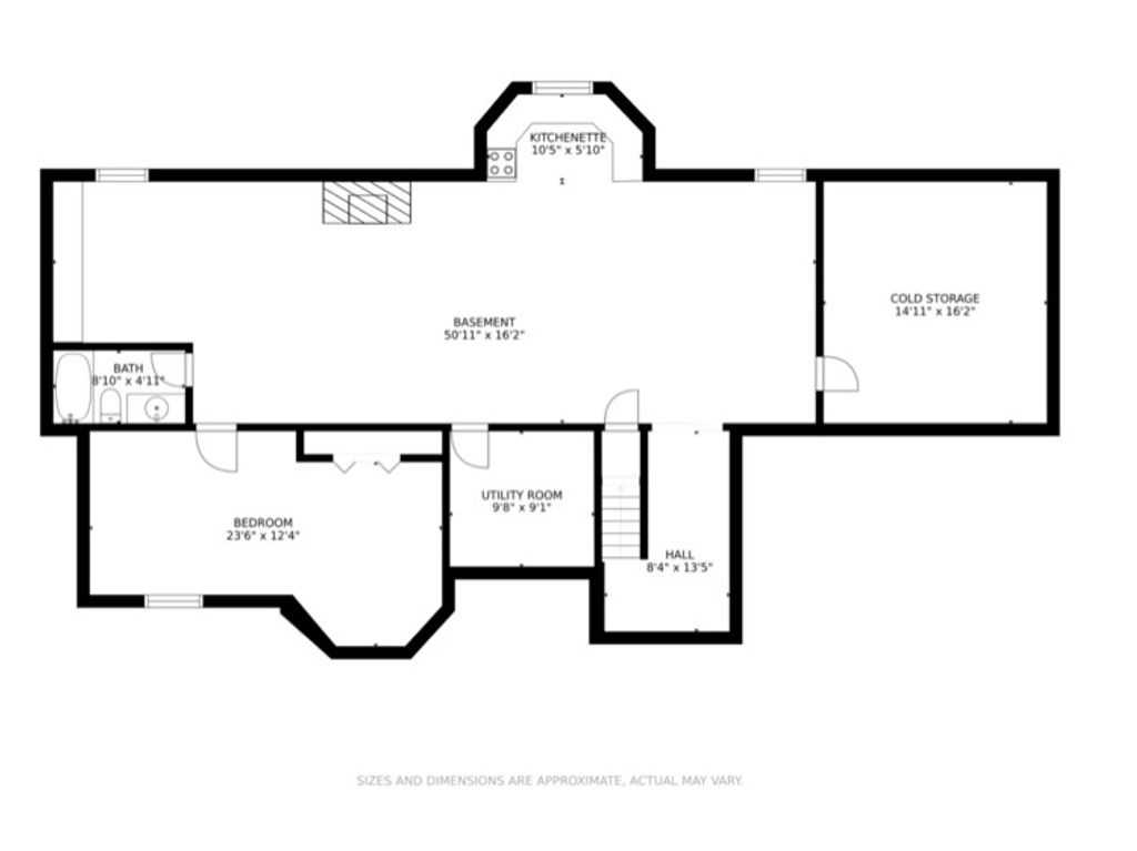
Tucked away on a quiet cul-de-sac with wonderful neighbors, this beautifully maintained Clinton home offers both comfort and flexibility. The main floor features 9-foot ceilings, a formal living room, and a small front room perfect for an office or additional sitting area. Enjoy a spacious family room with a cozy gas fireplace and a bright, open kitchen featuring quartz countertops and all-new flooring throughout. The remodeled primary bathroom adds a touch of modern luxury. Downstairs, the huge basement includes a finished bedroom, full bathroom, and a secondary kitchenette, offering excellent potential for a rental unit or in-law suite. With plenty of additional space, the basement could easily accommodate an extra bedroom, creating a 2-bedroom, 1-bath apartment with strong income potential. Current rents in the area range from $1,500$1,800 per month for similar basement units. While the home does not currently have a walkout, adding one is feasible and is estimated at around $15,000 to enhance accessibility and value. Outside, you'll love the large driveway with ample parking, along with a fully landscaped and fenced yard, perfect for gatherings, kids, or relaxing evenings. Conveniently located just minutes from Hill Air Force Base, shopping, parks, and freeway access, this home combines charm, functionality, and room to grow in one of Clinton's most desirable neighborhoods.
| DAYS ON MARKET | 7 | LAST UPDATED | 10/17/2025 |
|---|---|---|---|
| TRACT | RIDGE SUB | YEAR BUILT | 1999 |
| COMMUNITY | Hooper; Roy | GARAGE SPACES | 2.0 |
| COUNTY | Davis | STATUS | Active |
| PROPERTY TYPE(S) | Single Family |
| Elementary School | Clinton |
|---|---|
| Jr. High School | West Point |
| High School | Syracuse |
| ADDITIONAL DETAILS | |
| AIR | Central Air |
|---|---|
| AIR CONDITIONING | Yes |
| APPLIANCES | Dryer, Refrigerator, Washer |
| AREA | Hooper; Roy |
| BASEMENT | Full, Yes |
| CONSTRUCTION | Asphalt, Brick |
| FIREPLACE | Yes |
| GARAGE | Yes |
| HEAT | Central, Forced Air, Natural Gas |
| INTERIOR | Vaulted Ceiling(s), Walk-In Closet(s) |
| LOT | 0.26 acre(s) |
| LOT DESCRIPTION | Cul-de-Sac |
| LOT DIMENSIONS | 0.0x0.0x0.0 |
| PARKING | Attached |
| STORIES | 2 |
| STYLE | Ranch/Rambler |
| SUBDIVISION | RIDGE SUB |
| TAXES | 3649 |
| UTILITIES | Natural Gas Available, Natural Gas Connected, Electricity Connected, Sewer Connected, Water Connected |
| VIEW | Yes |
| VIEW DESCRIPTION | Valley |
| ZONING | R-1-10 |
MORTGAGE CALCULATOR
TOTAL MONTHLY PAYMENT
0
P
I
*Estimate only
| SATELLITE VIEW |
| / | |
We respect your online privacy and will never spam you. By submitting this form with your telephone number
you are consenting for Kathryn
Roessler to contact you even if your name is on a Federal or State
"Do not call List".
Listed with LRG Collective
The multiple listing information is provided by UtahRealEstate.com from a copyrighted compilation of listings. The compilation of listings and each individual listing are © 2025 UtahRealEstate.com, All Rights Reserved. The information provided is for consumers' personal, non-commercial use and may not be used for any purpose other than to identify prospective properties consumers may be interested in purchasing. Information deemed reliable but not guaranteed accurate. Buyer to verify all information.
This IDX solution is (c) Diverse Solutions 2025.









































